1、概述
松江HJ-9702BA 消防設備電源狀態監控系統(以下簡稱監控系統)是我公司最新 研制開發,面向民用和工業雙重領域的新一代消防電源監控產品,具有高智能、小型化、多功能、高可靠性等特點。該監控系統是在跟蹤消防設備電源監測技 術的最新發展方向,并結合我公司多年來在工業領域及民用建筑中應用電壓監 測產品所積累下的大量寶貴經驗的基礎上研制成功的。 監控系統采用模塊化組板技術,優化了人機接口界面,同時具有一定的控制 功能,使整個系統易于安裝、調試及維護。監控器主機采用二總線數據傳輸方式, 配接我公司的 HJ-9510(單相電壓傳感器)、HJ-9511(單相電流傳感器)、HJ-9512 (三相電壓傳感器)、HJ-9513(三相電流傳感器)、HJ-9514(二路三相電壓傳 感器)五種傳感器,組成大容量消防設備電源監控系統,系統報警后可發送到總 監控平臺,適用于高層建筑和工業場所的消防設備電源監控。 消防設備電源監控系統是對消防設備電源進行監控,通過檢測消防設備電源 的電流、電壓值,從而判斷被監控的消防設備電源是否有過壓、欠壓、過流、缺 相、錯相及斷電等故障,有故障則報警并記錄的監控系統。它充分考慮了監控的 可靠性、實時性并具有數字化、智能化、網絡化、自動化和不間斷的特性。能在 時間快速的反映出被監控設備的電源狀況,進行集中顯示,從而有效避免了 火災發生時,消防設備無電可用的情況,更大 限度的保障了消防系統的安全性。
2、工作原理
監控器主要由電源板、主板、回路板和轉接板組成。電源板主要由主供電電 路和備電電路組成,主電工作的同時對備電進行充電,當電池充滿時,自動轉換 為浮充狀態,抵消電池的自放電,保證電池供電時的容量;主電斷電時自動切換 到電池供電。主板由單片機、數據存儲器、人機交互、總線通訊接口、聯網通訊 接口、打印機接口等電路組成。單片機采用 STM32 ARM 系列,功能強大,指令豐 富,運算速度快是應用廣泛的抗干擾能力強的 單片機。總線通訊接口負責與 回路板進行數據交互,并對讀取的數據,存儲、分析 、處理,然后進行聲光指 示及打印輸出。回路板循環對連接在總線上的傳感器按地址進行巡檢接收傳感器 的信息。人機交互由液晶顯示電路、按鍵輸入電路及聲光報警電路組成,可實現 系統設置、信息查看、報警提示等功能。
3、主要技術指標
3.1 執行標準:GB28184-2011《消防設備電源監控系統》;
3.2 供電方式:主電:AC 220V(-15%~+10%),50Hz; 備電:DC 24V,7Ah;
3.3 消耗功率:≤5W;
3.4 輸出電源:DC 24V;
3.5 系統配置:更大 4 回路,每個回路最多120 點;
3.6 通信方式:二總線;
3.7 安裝方式:壁掛式(室內安裝);
3.8 使用環境:溫度:0~+40℃,濕度< 95%,無凝露;
3.9.防護等級:IP30。
4、基本功能
4.1 故障報警功能 當監控系統(包括監控器及與其連接的傳感器)或被監控的消防設備電源發 生故障時,監控器點亮對應故障燈,并發出故障報警音響,同時液晶屏上顯示出 故障類型、時間、位置等信息。當故障排除后,故障報警自動解除。
4.2 存儲功能 監控器可存儲故障記錄、變更記錄、運行記錄。故障記錄最多可存儲 10000 條。
4.3 鎖鍵功能 管理人員可對監控器進行按鍵鎖定,鎖鍵后操作面板上的按鍵除‘消音’鍵 外,將全部鎖定,鎖鍵后鎖鍵指示燈點亮。
4.4 自檢功能對面板上所有的功能指示燈、LED 液晶屏、音響器件進行自檢。
4.5 操作分級功能 監控器設有二個操作級別,分別為:查看級別、管理級別。‘消音’鍵任何 級別都可操作。 查看級別只能查看系統參數、當前故障信息等數據;管理級別除了有查看級別的功能外,還有能設置監控器的系統參數,查看歷史記錄等。
5、監控器說明
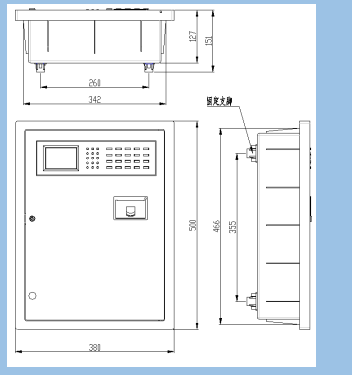
5.1 外形尺寸

5.2 安裝方式:

監控器常用安裝方式有壁掛式及嵌入式(如上圖)。壁掛式即通過 2 只 M8 膨脹螺栓把監控器掛在墻面上,膨脹螺栓孔為φ 12mm,尺寸 355*260,深度根據所用膨脹長度選擇;嵌入式即把部分箱體嵌入至墻體內部,嵌入部分尺寸為 466*342,穿線孔位置如圖。
5.3 操作面板說明

5.3.1 LCD 液晶顯示屏: 顯示屏位于監控器的左上角,做為人機對話的窗口,能實時顯示監控器的各 種狀態,供用戶設置、查看、屏蔽等操作使用。
5.3.2 主要監控器指示燈:
1)消音(綠色):進行消音操作時,指示燈點亮;
2)故障(黃色):監控器或傳感器存在故障;
3)系統故障(黃色):系統軟件發生故障;
4)自檢指示(綠色):正在進行系統自檢操作;
5)屏蔽指示(黃色):屬性設置中內在屏蔽點;
6)主電工作(綠色):主電(AC 220V)供電;
7)主電故障(黃色):主電(AC 220V)故障;
8)備電工作(綠色):備電(DC 24V)供電;
9)備電故障(黃色):備電(DC 24V)故障;
10)鎖鍵(綠色):按鍵鎖定,除‘消音’鍵,其它按鍵全部鎖定。
5.3.3 監控器按鍵:
1)消音:消除監控器正在發生的故障音響。
2)切換:在進行設備描述設置時使用,用于選擇輸入數字是區位碼還是字 符。
3)復位:對監控器進行系統復位。
4)退出:返回上一級菜單,如本級菜單設置有變動,退出時系統會詢問是 否保存,沒有則直接退出。
5)編程/確認:此鍵為復合鍵,編程鍵的功能是按下此鍵后,輸入修改密碼 ‘4321’,進入編程主菜單,輸入查看密碼‘1234’,進入查看主菜單;確認鍵 的功能是按下此鍵后,能夠確認各種編程菜單中,保存所修改的內容。 6)數字鍵:與方向鍵、刪除鍵復合使用,設置輸入時為數字鍵,非設置輸入時 為方向鍵、刪除鍵。
松江HJ-9702BA消防設備電源監控系統說明書下載
HJ-9702BA消防設備電源監控系統 20191113-4.pdf



蘇公網安備32058102002172號
客服1